Litelink Home  Fiber Optic Communications Systems Home   Contact   Search
Home
Up
Products
Services
FAQs
Support


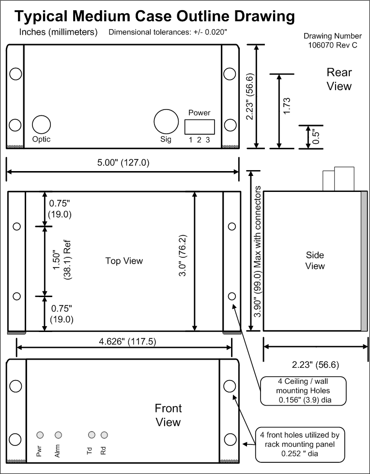
Medium Case Outline

GIF Format               PDF Format

Click for GIF Version

Products with the Medium case outline occupy two position in the rack mounting panels.
 


Liteway, Inc.

Voice: 1-516-931-2800

Email: