Litelink Home  Fiber Optic Communications Systems Home   Contact   Search
Home
Up
Products
Services
FAQs
Support


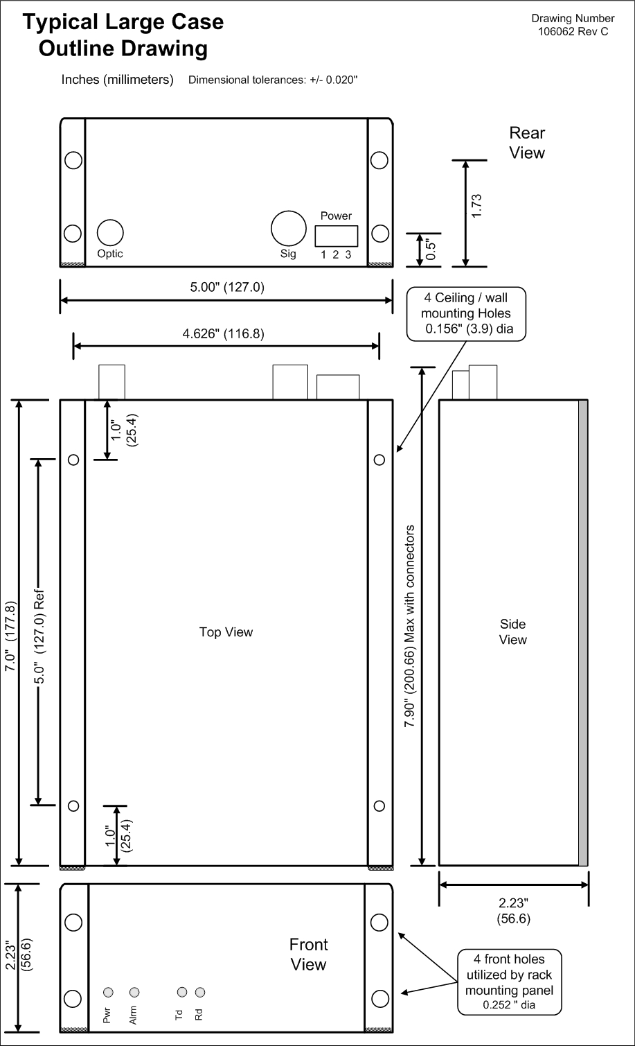
Large Case Outline

GIF Format               PDF Format

Click for GIF Version

Products with the Large case outline occupy two positions in the rack mounting panels.
Example product in this configuration is the PS-1260, 6 Amp power supply.

 


Liteway, Inc.

Voice: 1-516-931-2800

Email: